Beijing Starwild Glamping Co.,Ltd.
Beijing Starwild Glamping Co.,Ltd.
starwild@tentsglamping.com

栖居双峰

以半永久建筑标准打造的全季候奢华墅居。四层复合顶布结构(PVDF外布+PVC+隔热棉+弹力内衬),配合分体式顶帐设计,不仅实现了卓越的隔热、保暖与防晒性能,还具备优异的抗风、防雨能力。墙体采用内外双层硬质保温板,能有效阻隔热量传递,确保室内四季如春。                                                                  
其创新的拉膜顶布与斜拉支撑系统,在保证结构强韧的同时,营造出开阔通透的视觉感受。配备全景落地断桥铝中空玻璃幕墙,在提供绝佳采光的同时,将户外自然美景无缝引入室内。内部采用无柱化开阔设计,空间利用率高,可根据项目需求灵活配置,完美适配高端接待、酒店住宿、主题餐饮及各类活动场景。

栖居双峰奢华帐篷 · 设计与配置

Beijing Starwild Glamping Co.,Ltd.
栖居双峰奢华帐篷 · 设计与配置
1
骨架
  • 采用热浸镀锌钢框架,防腐防锈、强度高,适应多种气候条件,确保结构稳定耐用。


2
顶帐
  • 该帐篷配备了高品质的顶帐,PVDF建筑膜材篷布+PVC+隔热层+内吊顶4层篷布。

  • 防水、防风、防火、防紫外线、保温


3
外墙
  • 帐篷墙体由硬体墙板+中空玻璃幕墙组合而成。

  • 既能保证适当的通风,又能起到保温、防风、防雨和防紫外线的作用。


4
框架连接点
  • 框架连接点的结构连接采用加厚热镀锌钢管,以增强帐篷的耐用性和稳定性。

5
门窗
  • 栖居奢华帐篷配备了高品质的钢化玻璃门,确保使用便捷和安全性。

  • 帐篷设计有大型窗户,使室内拥有充足的自然光线和空气流通,打造出舒适通风的室内环境。


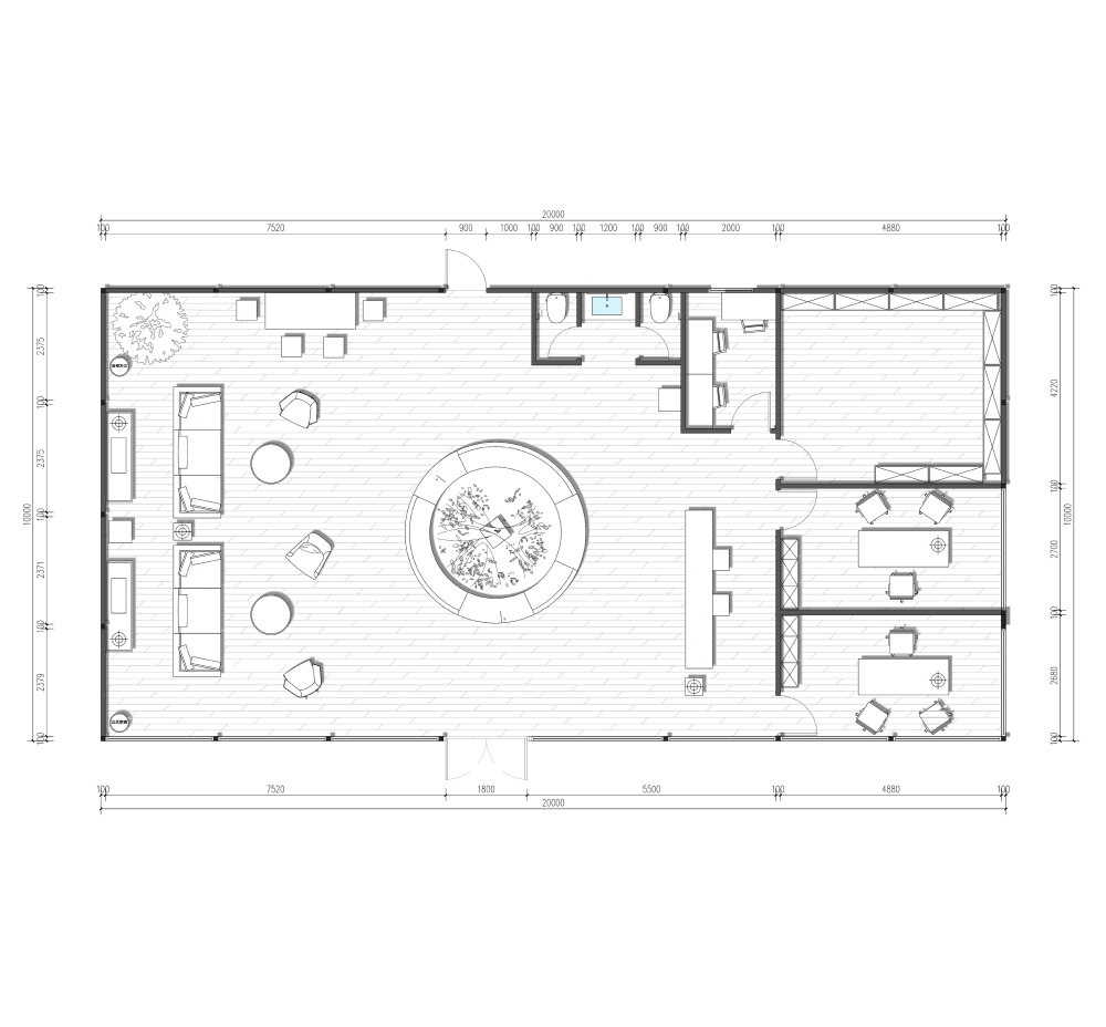
栖居双峰奢华帐篷 · 内部特点

Beijing Starwild Glamping Co.,Ltd.
栖居双峰奢华帐篷 · 内部特点
1
景观休息区

圆形一体式设计,开放式布局,中央绿植景观搭配环绕式座席,营造围合而通透的雅致休憩空间。

2
休息等候区

舒适沙发组搭配艺术摆件,营造静谧的等候空间,彰显接待品质。

3
儿童娱乐区

室内独立区域,安全软包设计,空间开阔,配备儿童专属家具,营造舒适安全的亲子活动空间。

4
卫生间

独立通风采光,全瓷砖铺贴,配备智能马桶与艺术台盆,保持洁净高雅。

5
办公区域

独立运营空间,隔音良好,配置齐全,满足营地管理、财务及物资调度需求。

6
仓库

模块化仓储系统,分类清晰,便于布草、设备及物资的高效存取与管理。

7
隔断系统

高品质实木或竹木纤维隔断,兼顾空间通透感与私密性。

8
前台接待区

天然石材台面搭配暖色灯带,造型简约大气,兼具品牌展示与高效接待功能。

9
地板系统

SPC户外防潮地板,防水防霉,仿实木纹理,触感温润,兼顾野奢格调与耐用性。可搭配地暖系统,四季皆宜,脚感舒适。

10
平台系统

镀锌钢框架,稳固防锈,架空防潮隔音。面层可选防腐木板(天然质感)或木塑板(防水免维护),边缘嵌入式灯带,营造奢华氛围。

立即获取解决方案

星野上露营

Beijing Starwild Glamping Co.,Ltd.
联系我们
如有任何需求,请联系我们。

相关 栖居奢华帐篷

Beijing Starwild Glamping Co.,Ltd.
PRODUCT RECOMMENDATION
动态和新闻 Beijing Starwild Glamping Co.,Ltd.
NEWS
x